BIENVENIDO A LA COMERCIALIZACIÓN
Comienza la fase abierta al público.
Ya se han reservado todas las viviendas. Aún estás a tiempo de adquirir garajes.
Residencial Corrales
Huelva
19 Viviendas
PARA LA VENTA
552 Alistados
INTERESADOS EN COMPRAR
TODAS VENDIDAS
19 Reservadas
3 Garajes
DISPONIBLES
Viviendas de 4 dormitorios, 3 baños, salón, cocina, comedor, garaje privado, porche de acceso, terraza, 2 balcones y patio desde 32 m² hasta 76 m². Todas con unas espectaculares vistas despejadas.
Nuestro trabajo ha consistido en completar cada vivienda respetando lo ya ejecutado con calidad, y aportando un estilo más actual y funcional, sin perder la esencia del proyecto original. Hemos aprovechado al máximo los elementos existentes que se encontraban en buen estado, armonizándolos con acabados contemporáneos, materiales cuidadosamente seleccionados y una distribución pensada para crear hogares cómodos, cálidos y duraderos.
Viviendas desde 166 m2 construidos

El salón - comedor
En función del tipo de vivienda, este espacio puede presentarse como una única estancia integrada o en zonas diferenciadas. Se trata del núcleo principal de vida. Aquí te ofrecemos una propuesta de mobiliario seleccionada por nuestros decoradores.

Dormitorio principal
Proponemos los colores de mobiliario que mejor combinan con este espacio, basándonos en los materiales ya existentes. Dispone de baño y acceso directo a balcón.

La cocina
Como en todos nuestras imágenes, a parte de reflejar la vivienda, damos ideas de combinación de mobiliario, en este caso la combinación de muebles acanalados en tono crema con columnas de madera clara genera una cocina cálida, luminosa y atemporal.

4 Amplios dormitorios
Con una buena decoración podrás crear un hogar muy confortable.
Cuentan con acceso a balcón o terraza

Fachada
La fachada combina elegancia y carácter con el contraste entre tonos burdeos y blanco, logrando una imagen atractiva y equilibrada que respeta la estética del entorno y aporta coherencia al conjunto residencial.

Viviendas con conexión total al exterior. Patios privados, terrazas y zonas ajardinadas exclusivas en un enclave de vistas privilegiadas. Disfruta del interior y el exterior en armonía.
Patio privado
desde 32 m2 hasta 76 m2

Garaje
Cada vivienda cuenta con su propio garaje privado con acceso directo desde el sótano comunitario, lo que garantiza comodidad y seguridad en el día a día. Además, existe la posibilidad de adquirir plazas de garaje adicionales en el mismo recinto, ideales para una segunda plaza o como espacio extra de almacenamiento.
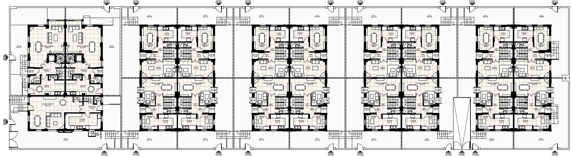
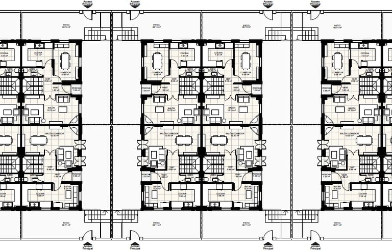
Planos




Selecciona cada vivienda para visualizar el plano
Calle Castillo Buitrón
Calle Santa Rosa
Las 19 viviendas que ofrecemos se dividen en 5 tipologías diferentes.
Cada tipo tiene patios de distintos tamaños, porches, terrazas e incluso, garajes. Todas comparten una distribución funcional y bien aprovechada, pero los espacios exteriores y las dimensiones hacen que cada vivienda sea única. Todas las viviendas cuentan con una plaza de garaje, pero además quien quiera puede comprar uno o más plazas adicionales. Se venden también plazas sueltas, pero los compradores de vivienda tendrán prioridad durante un tiempo limitado para decidirlo.


Plano Garaje
Calle Santa Rosa


Viviendas desde 166 m2 construidos
Calle Castillo Buitrón
Plano Viviendas
Galería de imágenes


















En nuestras imágenes mostramos cómo podría decorarse cada espacio de forma óptima, creando ambientes acogedores, funcionales y bien pensados. Cada escena está diseñada para reflejar el verdadero potencial de la vivienda.
Reserva tu vivienda
Elige la opción que más se adapte a ti.
En nuestras promociones puedes reservar tu vivienda sin necesidad de adelantar dinero, mediante la firma de un contrato de arras real y vinculante.
Se trata de un contrato que garantiza la reserva de la vivienda y establece un compromiso firme entre las partes.
La particularidad es que, para generar confianza en el proceso, no exigimos el pago inmediato de una señal en el momento de la firma.
Eso sí, como en todo contrato de arras, si alguna de las partes decide echarse atrás, existe una penalización por incumplimiento, tal y como se recoge en el contrato.
Dentro de esta fase de preventa, ofrecemos dos formas de reserva, según el momento en que prefieras tomar la decisión:
Reserva Inmediata, para quienes lo tienen claro y quieren asegurar su vivienda desde ya.
Reserva Previa Visita, para quienes prefieren conocer la promoción en persona antes de formalizar.
Todas las viviendas vendidas
¡Todavía puedes adquirir garajes!
NOTA IMPORTANTE: Hay plazas de garaje extra con prioridad de compra para quien adquiera vivienda, por tiempo limitado. Piénsalo bien y elige antes que otro vecino compre la que está al lado de la tuya.
Precios
La compra de estos inmuebles están sujetas a ITP, es decir NO llevan IVA.
Garaje desde 9.500€
Financiación
Queremos facilitarte el proceso de compra de tu vivienda.
Por eso, ponemos a tu disposición un equipo asesor hipotecario independiente, que te ayudará a encontrar la mejor financiación disponible según tu perfil y tus necesidades. Podrás comparar condiciones, tipos de interés y requisitos con diferentes entidades bancarias, sin compromiso.
Accede al comparador de hipotecas y solicita tu estudio gratuito y personalizado.
Nota importante:
Este formulario se ofrece únicamente como vía de contacto directa con el equipo asesor. Nuestra empresa no tiene ningún vínculo comercial con la entidad bancaria, ni interviene en las gestiones financieras. Solo facilitamos el acceso a esta información como un apoyo adicional para quienes estén valorando la compra de su vivienda.
Si estás interesado en recibir una propuesta personalizada o resolver cualquier duda sobre financiación, puedes rellenar el siguiente formulario.
Sabemos que muchos de los que estáis interesados en nuestras promociones tenéis una vivienda en propiedad que necesitáis vender para poder avanzar con la compra, o simplemente estáis pensando en ponerla en el mercado.
En PROPEIS podemos ayudarte.
Contamos con un canal inmobiliario propio y una red activa de compradores interesados que nos permite dar visibilidad real a tu vivienda, agilizar los tiempos y facilitar todo el proceso.
No somos una agencia tradicional.
Solo ofrecemos este servicio a quienes, como tú, ya forman parte de nuestra comunidad de compradores interesados.
Si quieres que te ayudemos con la venta de tu vivienda, estamos a tu disposición para valorarla sin compromiso y ayudarte en lo que necesites. Pulsa el botón y dinos en que te podemos ayudar.
¿Necesitas vender tu vivienda?
Aviso legal y Protección de datos
Toda la información contenida en esta zona privada de la web es estrictamente personal, confidencial e intransferible. El acceso ha sido concedido individualmente y queda terminantemente prohibida su reproducción, cesión, difusión o publicación por cualquier medio, ya sea total o parcial, sin autorización expresa y por escrito de la promotora.
El acceso a esta área implica la aceptación de esta condición y la responsabilidad de preservar la confidencialidad de los contenidos facilitados.
Asimismo, informamos que PROPEIS INVERSIONES S.L. aplica una política activa y rigurosa de protección de datos conforme al Reglamento (UE) 2016/679 (RGPD) y a la Ley Orgánica 3/2018 de Protección de Datos Personales y garantía de los derechos digitales.
Los datos personales facilitados por los usuarios serán tratados con absoluta confidencialidad y únicamente para los fines relacionados con la gestión comercial, técnica y administrativa de su promoción inmobiliaria, sin ser cedidos a terceros salvo obligación legal.
Contamos con todas las medidas de seguridad técnicas y organizativas necesarias para garantizar la integridad, disponibilidad y confidencialidad de la información proporcionada.
CÁCERES
MADRID
© 2025. All rights reserved.
Calle Juan Esplandiú, 15,
28007 Madrid - Spain

